Татарстан, г. Казань
IG
WA
TG
IG
WA
TG
Интерьеры для вашего дома и бизнеса
ЖК
Острова
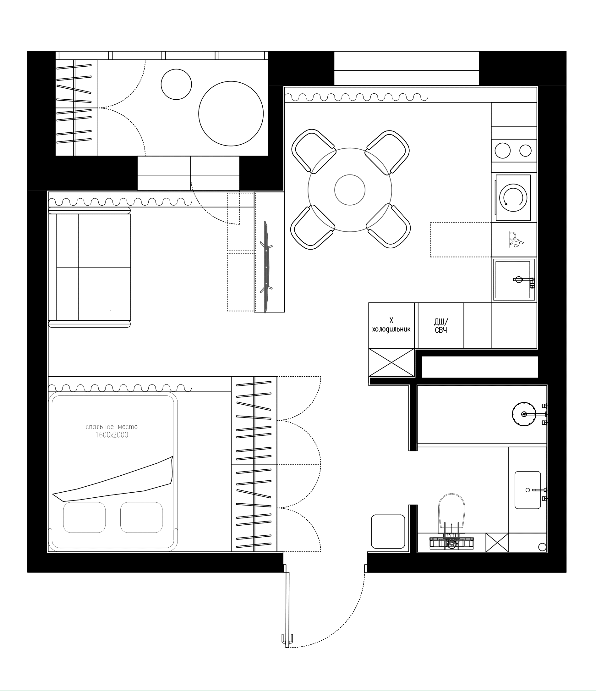
33 м²
Площадь
Перечень помещений
Прихожая
Санузел
Кухня-гостиная
Спальная зона
Балкон
Локация
г. Казань

Квартира студия для молодой девушки

(2024)
планировка квартиры студии
Квартира студия для молодой девушки, общие цвета довольно сдержанные, акцент решили сделать на мебели, выбрали оттенок оранжевого и голубого, это сочетание выглядит очень свежо, но в то же время не перегружает общую атмосферу, вместили раскладной диван, полноценное спальное место, хорошую кухню и круглый стол. Санузел выполнен в спокойной бежево-голубой цветовой гамме, очень нежный и воздушный как и хозяйка этой квартиры
ЖК
Уникум
Следующий проект